Luminous Minimal

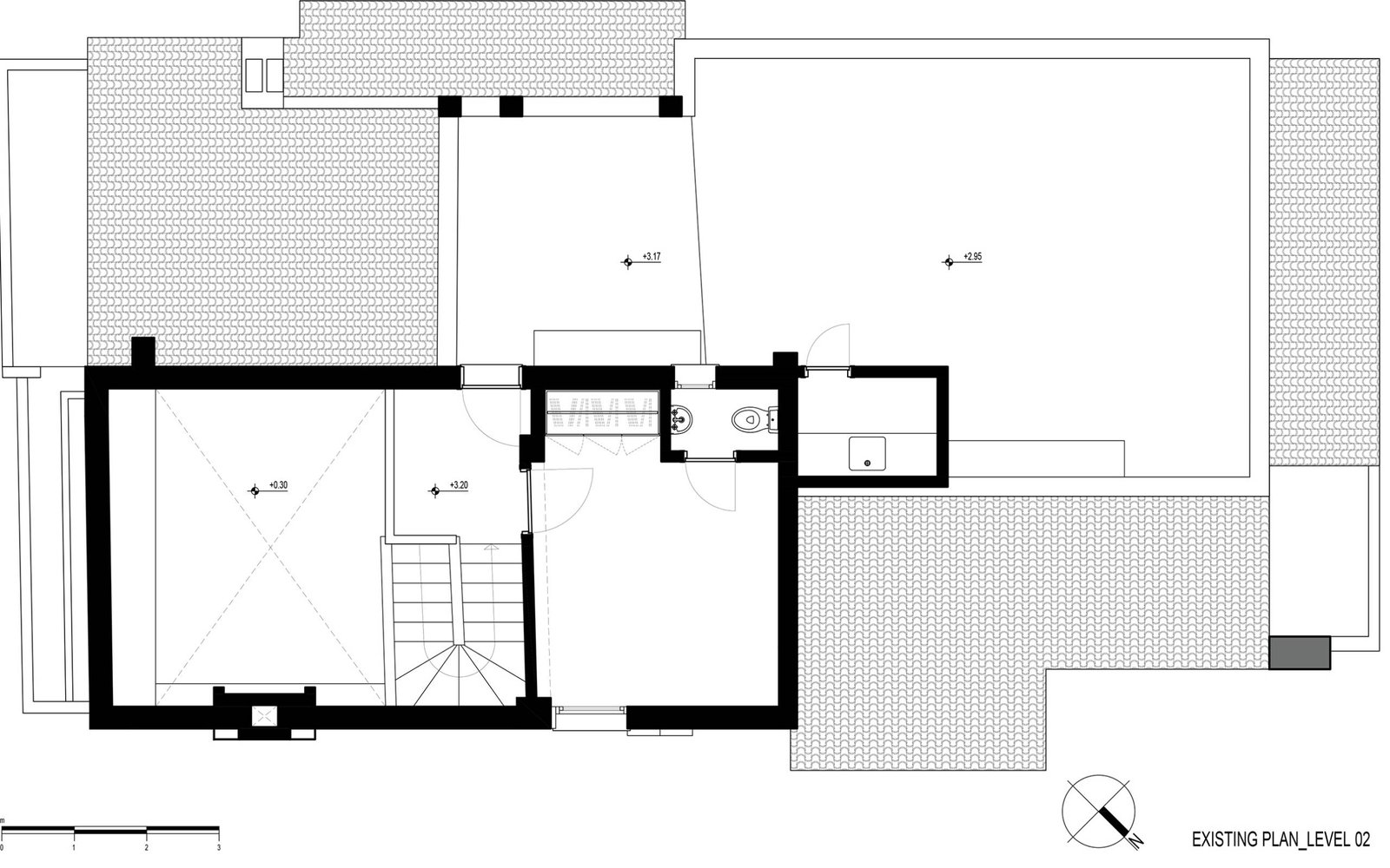
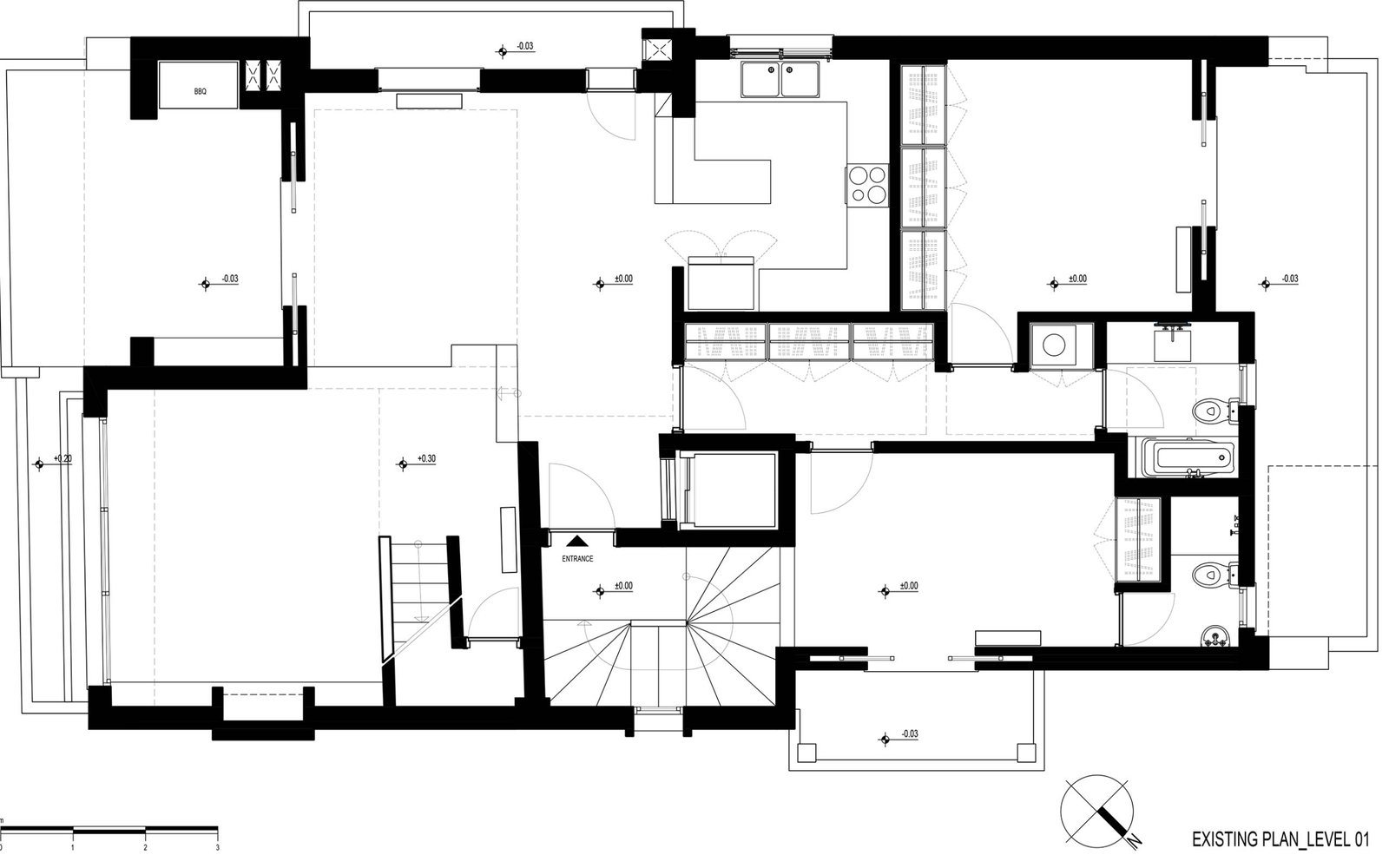
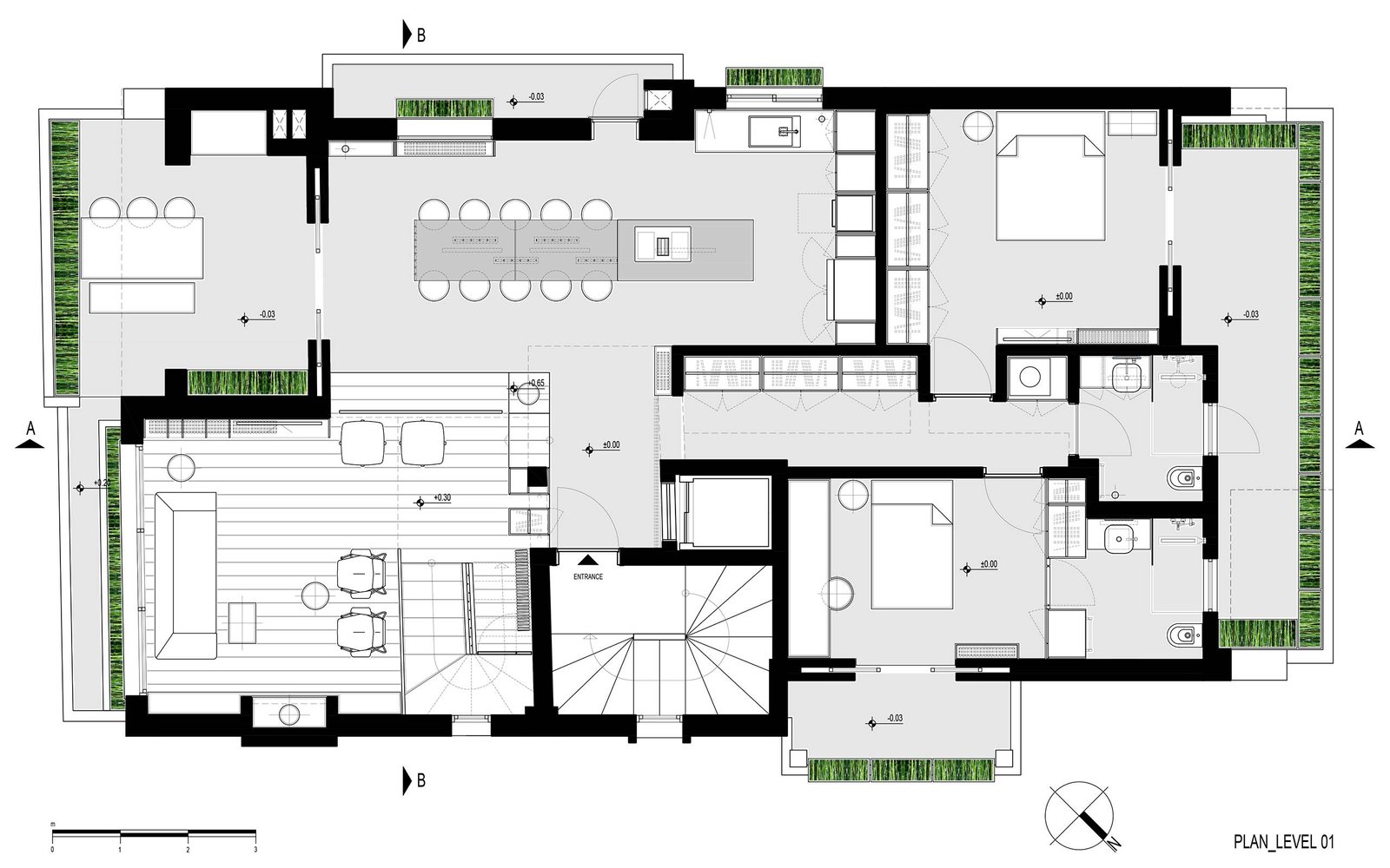
Limited budget refurbishment in an Athenian southern suburb building transformed existing reality into the oneiric domestic realm. The potential of natural light was enhanced through implementation of neutral pallet natural materials as a blank canvas for illumination effects. Two main parallel axes were established. One that erased boundaries between the private and public, connecting a communal space to the backyard bamboo garden. The other one being a five-meter-long multi-purpose unit that relates to a street side papyrus garden. Slight alteration of already defined space was imposed to avoid excessive demolition of divisions.

  • Location

    Voula, Attica_ Greece
  • Year

    2021
  • Interior design Author

    Ivana Lukovic, Architect_ Athens/Greece
  • Collaborators

    Alexandra Arampatzi, Architect_ Athens/Greece Stanford Rabbit (Kostas Geranios and Orestis Mpormpantonakis), Renderings_ Athens/Greece
  • Contractor

    ELER AE_ Athens/Greece (Dr. Andronikos Theocharis, Civil Engineer_ Athens/Greece)
  • Mechanical Study

    Tasos Katsaros, Mechanical Engineer
  • Joinery

    Koupaloglou Emmanouil_ Anavyssos, Athens/Greece
  • Photo credits

    Athina Souli, Photographer_ Athens/Greece
  • Video credits

    Athina Souli and Vangelis Michelidakis_ Athens/Greece