Milk Boutique proposal

The place is designed to provide the customer with a range of daily made dairy products that could be observed, tasted, and bought, thus transferring the everyday commodity to another level of experience.

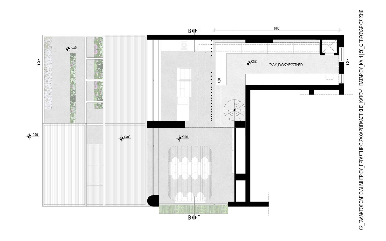
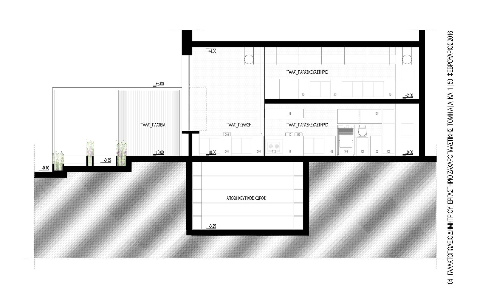
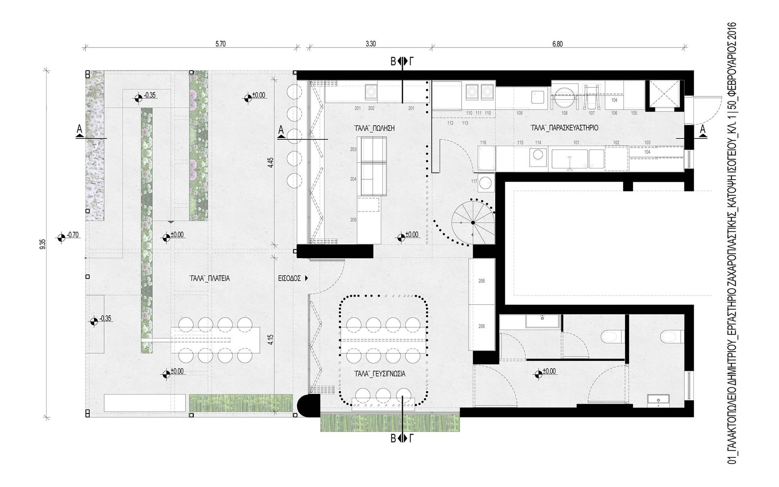
Three focus points have been created: selling counter, degustation hut that is a visual experience itself and an outside square-like area for consuming the products among the wildflowers. They involve the visitor’s olfactory, along with tempting aromas that come from the preparation area. Natural light enters the space from the several sides, contributing to the oneiric effects of light and shadow.

The unity of the whole space is achieved by the monochromia of the white color applied - fresh milk purity echo. Glossy textures of the floors and walls double spatial volume and create reflections, while the exposed ventilation pipes enhance industrial feel of the interior.

The white, canvas-like space enables a perfect base for projections that introduce consumers to the production process and factory development, while changing the atmosphere and the color of the place.

  • Location

    Glyfada/Greece
  • Year

    2016
  • Interior design

    Ivana Lukovic, Architect_ Athens/Greece
  • Collaborators

    Alexandra Arampatzi, Architect_ Athens/Greece Stanford Rabbit (Kostas Geranios and Orestis Mpormpantonakis, Architects), Renderings_ Athens/Greece